CubiCasa Floor Plans

cubicasa

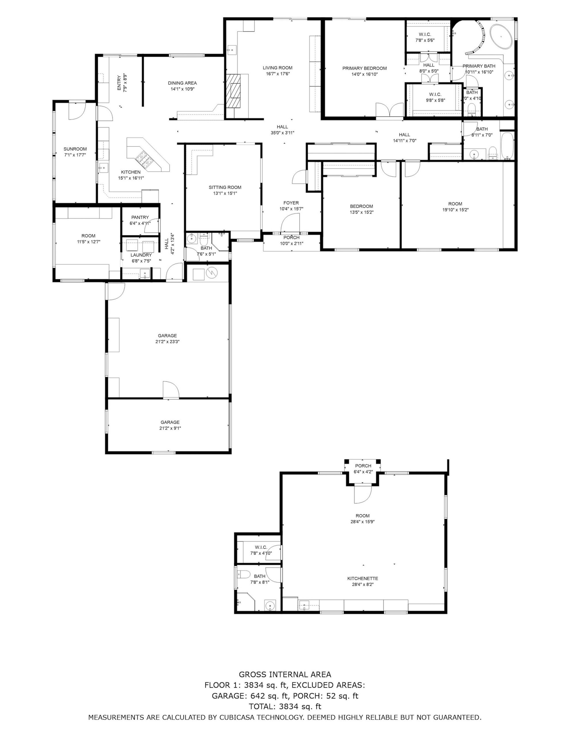
List-It Home Images has partnered with CubiCasa, to create full a floor plan for every home we photograph. Photos are linked to the floor plan creating a virtual walk-through. As CubiCasa’s preferred photographer, we create the easiest to use online presence for your listings.